Sorszám
K2
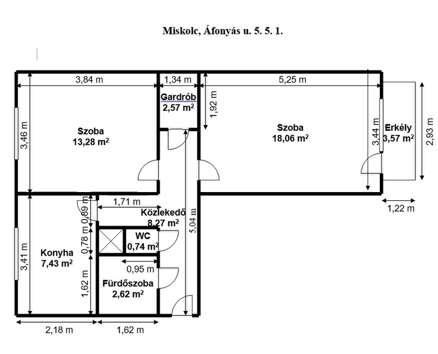
Cím
Áfonyás u. 5. 5/1*
Szobaszám
2
Terület (m²)
55
Komfort fokozat
Összkomfortos
Bérleti díj (bruttó)
29 700 Ft
Óvadéki díj (bruttó)
178 200 Ft
Bérleti díjjal szemben beszámítható felújítási költség összege
152 079 Ft
Adatok
Pályázati kiírás

